純 影 空 間

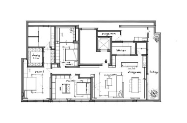
Blueprint|平面圖
居住成員|2大人
空間坪數|45坪
設計風格|現代簡約 侘寂
房屋狀況|老屋翻修
空間格局|3+1房2衛1廳
本案為3+1房 2 衛1廳,20年老舊住宅,總坪數約 45 坪,業主希望在不浮誇設計的前提下,透過最簡潔的線條與最少的色彩,達到空間純粹、耐看且能長期居住的效果。

玄關與動線規劃
入門玄關採用無把手灰白色收納櫃,充分隱藏鞋履及日常雜物,維持視覺整潔。同區域地坪以深淺水泥灰磚做分野,一面牆體開放格層,可擺放常用雨傘與鑰匙收納盤,動線自此暢通導入客廳與餐廚。
客廳與餐廚整合
客廳僅以米灰色布沙發搭配深色小茶几,並未額外配置繁複裝飾,讓視覺焦點落在後方電視牆。電視牆採用灰階藝術塗料,省去多餘線條,牆面平滑如畫布;旁側隱藏式置物長櫃具備收納功能,也能當作展示平台。餐廚空間採開放式布局,一字型廚櫃與中島吧檯連貫,淺灰烤漆櫃體與黑色石材檯面形成簡潔對比,使用動線一氣呵成。
走廊與公共區域過渡
連接各房與公共空間的走廊地面鋪設同質材質地磚,牆面維持素色粉光,天花板以暗藏燈帶取代繁複燈具,提供均勻光源。同時,在走廊盡頭設置一面隱藏門,通往機能性衣物更衣間與清潔儲藏室,保留公領域的寬敞感。





主臥:無把手衣櫃與開放更衣區
主臥以灰白木皮鋪排,床頭牆兩側崁入溫控壁燈,提供柔和閱讀光線。床尾規劃開放式更衣區,以細格柵界定空間,不阻視線,讓服飾陳列也成為房間裝飾。收納側櫃內含多層抽屜與隱藏式掛桿,兼具實用與簡潔。
次臥與書房:靜謐工作角
兩間次臥房之一改作書房,配備白橡木書桌與灰色層板書櫃,桌側隱藏 USB 充電槽,線路集中管理,維持桌面整潔。另一間次臥則保持最基本的睡眠功能,可進行未來彈性規劃。
衛浴:無縫收納與中性色調
主衛選用大尺寸灰色瓷磚配合無縫隱藏式收納櫃,鏡面櫃下方裝設感應式燈帶,提供化妝與清潔便利。次衛則採簡潔白磚搭配黑色五金配件,乾濕分離明確。
整體而言,本案透過最少的色彩(灰白、木色、黑色點綴)與最簡單的線條,消除繁複裝飾對空間的干擾;隱藏式收納、無把手設計及統一材質鋪陳,兼顧機能與美觀,讓居者在 3房 2 衛的尺度中,獲得純粹、整潔且經得起時間考驗的生活環境。







